Добро пожаловать на http://vipplan.ru

Випплан Алатырь - это тысячи проектов домов в нашем каталоге!

Вы всегда сможете найти для себя проект дома вашей мечты! Даже если этого не случилось, мы готовы в любую минуту предложить проект индивидуального дома.

Забыли пароль?
Вы еще не регистрировались?

Перейдите по ссылке ниже на страницу регистрации.

Регистрация...

Внимание!!!

В проектную документацию могут быть внесены изменения любой сложности, в соответствии в Вашими пожеланиями!

Полезные статьи

Системы утепления фасада

Основные тепловые потери происходят через стены, фундамент и крышу. Уменьшить их можно с помощью утеплителя, создав внутри дома оптимальный для жизни климат, с достаточно ровным температурным режимом и низкой влажностью....

Газобетонные перекрытия

Перекрытия из газобетонных плит, устанавливаются без применения подъемников и кранов. Строители устанавливают прочные и, что немаловажно, легкие газоблоки без помощи техники. Ячеистый бетон (пенобетон и газобетон) нашел широкое применение в домах из пенобетона и газобетона в Алатыре...

Проекты домов и коттеджей > Каталог проектов домов > Проект одноэтажного дома с мансардой и гаражом Vg2262

Проект одноэтажного дома с мансардой и гаражом Vg2262

Проект одноэтажного дома с мансардой и гаражом
Зарегистрируйтесь

Проект № Vg2262


Техническое описание
Общая площадь: 198.86 м2
Жилая площадь: 102.83 м2
Высота здания: 8.51 м
Размеры дома: 15.14м×9.44м
Кол-во комнат: 5
Цокольный этаж: нет
Гараж: нет
Мансарда: есть

Kонструкция
Фундамент: ленточный монолитный ж/б
Перекрытия: монолитная ж/б плита

Архитектурный раздел
Конструктивный раздел
АР+КР - 60 000 (Со скидкой 20%)
Проект индивидуального одноэтажного жилого дома с мансардой с размерами здания 15,14x9,44 м. Наружная отделка здания - фасадная штукатурка, деревянные панели. Фундамент – ленточный монолитный ж/б. Наружные стены здания: блоки крымского ракушечника с отделкой фасадной штукатуркой и деревянными панелями. Внутренние стены: блоки крымского ракушечника. Перегородки - рядовой кирпич. Пол 1 этажа - пол по грунту. Межэтажное перекрытие - монолитная ж/б плита с арм.поясом в теле плиты. Крыша многоскатная.Кровля здания - металлочерепица. Лестница - деревянная по индивидуальному заказу. Окна – металлопластиковые.
Генплан застройки участка / Паспорт проекта 7000 руб / 10000 руб
Инженерный раздел (полный) 99500 руб
Смета на строительство 49750 руб
Теплотехнический расчет материалов стен Бесплатно
Стоимость проекта со незначительнми изменениями 70000 руб
Стоимость проекта со средними изменениями* 85000 руб
Стоимость проекта со значительными изменениями** 88900 руб

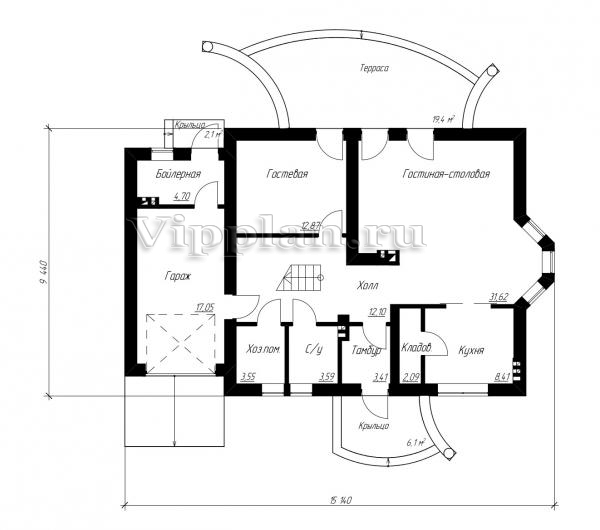
План первого этажа


Крыльцо — 6,1 кв м
Тамбур — 3,41 кв м
Холл — 12,10 кв м
Гостиная — 31,62 кв м
Кухня — 8,41 кв м
Кладовая — 2,09 кв м
Гостевая — 12,87 кв м
Помещение — 3,55 кв м
С/у — 3,59 кв м
Гараж — 17,05 кв м
Бойлерная — 4,70 кв м
Крыльцо — 2,1 кв м

План мансардного этажа


Холл — 5,19 кв м
Спальня — 20,34 кв м
Балкон 1 — 4,10 кв м
Спальня — 19,52 кв м
Спальня — 18,42 кв м
Балкон 2 — 2,60 кв м
С/у — 12,04 кв м
Помещение — 21,88 кв м
Проект одноэтажного дома с мансардой и гаражом Проект одноэтажного дома с мансардой и гаражом Проект одноэтажного дома с мансардой и гаражом Проект одноэтажного дома с мансардой и гаражом

Модификации проектов

Внесение изменений и привязка к участку строительства

В любой из проектов от компании VIPplan - Алатырь по вашему желанию могут быть внесены изменения в материалы стен, материалы наружной отделки дома, а также будет произведена адаптация проекта под конкретный регион строительства (с учетом грунтов региона, геологических особенностей вашего участка и местных климатических условий) - БЕСПЛАТНО !!! (кроме проектов со скидкой и проектов наших партнеров).

Любой из проектов, размещенных на сайте alatyir.vipplan.ru мы можем выполнить из требуемых вам строительных материалов: ячеистый бетон (газобетон, пеноблок), керамоблок, кирпич, шлакоблок, бетонный блок, дерево (брус, клееный брус), каркасная технология (деревянный каркас, металлокаркас (ЛСТК)).

Фасад дома и его наружную отделку так же возможно выполнить с применением различных облицовочных материалов: структурной штукатурки, (с утеплителем и без), сайдингом (пластиковый или металлосайдинг), фиброплитами, кирпича.

 
6 Избранные
проекты

Доставка проектов по России: Москва (Московская область), Санкт-Петербург (Ленинградская область), Краснодар, Ростов-на-Дону, Ставрополь, Сочи, Волгоград, Новосибирск, Белгород, Брянск, Воронеж, Саратов, Хабаровск, Астрахань, Нальчик, Владикавказ, Екатеринбург, Тюмень, Самара, Нижний Новгород, Казань, Пермь, Уфа, Челябинск, Красноярск, Ханты-Мансийск, Иркутск, Курган, Оренбург, Омск, Томск, Барнаул, Новокузнецк, Кемерово, Абакан, Чита, Якутск, Южно-Сахалинск, Петропавловск-Камчатский и страны ближнего зарубежья: Белоруссия, Украина, Казахстан