Добро пожаловать на http://vipplan.ru

Випплан Алатырь - это тысячи проектов домов в нашем каталоге!

Вы всегда сможете найти для себя проект дома вашей мечты! Даже если этого не случилось, мы готовы в любую минуту предложить проект индивидуального дома.

Забыли пароль?
Вы еще не регистрировались?

Перейдите по ссылке ниже на страницу регистрации.

Регистрация...

Внимание!!!

В проектную документацию могут быть внесены изменения любой сложности, в соответствии в Вашими пожеланиями!

Полезные статьи

Приобретение земельного участка в собственность

Вы собираетесь приобрести участок. Прежде чем принять окончательное решение, тщательно изучите местность, на которой находится ваш участок, внимательно осмотрите местность. Узнайте о близости реки или других водоемах, всмотритесь в рельеф. Каждый из факторов может иметь неоспоримые плюсы, а также минусы, способные повлиять на окончательное решение. Стоит принять во внимание, что земельные участки, которые продаются «напрямую», дешевле тех, которые реализуют, пользуясь услугами посредников....

Мероприятия по получению разрешения на строительство в Алатыре

Хотите построить дом в Алатыре? Не знаете с чего начать? Для начала, нужно заказать проект, а после получить разрешение на строительство. ...

Проекты домов и коттеджей > Каталог проектов домов > Проект коттеджа с подвалом и мансардой Vg1193

Проект коттеджа с подвалом и мансардой Vg1193

Проект коттеджа с подвалом и мансардой
Зарегистрируйтесь

Проект № Vg1193


Техническое описание
Общая площадь: 178.06 м2
Жилая площадь: 103.14 м2
Высота здания: 9.38 м
Размеры дома: 17.18м×13.2м
Кол-во комнат: 4
Цокольный этаж: нет
Гараж: нет
Мансарда: есть

Kонструкция
Фундамент: Ленточный
Перекрытия: Сборные ж/б плиты
Материал стен: Газобетон

Архитектурный раздел
Конструктивный раздел
АР+КР - 60 000 (Со скидкой 20%)
Проект индивидуального одноэтажного жилого дома с мансардой подвалом, размерами 17,18 х 13,20 м. Наружная отделка здания – облицовочный кирпич. Цоколь – клинкерная плитка. Кровля – битумная черепица. Фундамент – ленточный из блоков ФБС. Наружные стены: газобетонные блоки, утеплитель экструдированный пенополистирол, облицовочный кирпич. Внутренние стены – газобетонные блоки. Перегородки — гипсовые блоки. Отделка вентканалов и дымоходов – штукатурка. Перемычки – монолитные и сварные из профиля проката. Пол первого этажа – пол по грунту. Подвальное и межэтажное перекрытие - сборные железобетонные плиты. Крыша двускатная. Окна металлопластиковые, выполненные по индивидуальному заказу.
Генплан застройки участка / Паспорт проекта 7000 руб / 10000 руб
Инженерный раздел (полный) 89000 руб
Смета на строительство 44500 руб
Теплотехнический расчет материалов стен Бесплатно
Стоимость проекта со незначительнми изменениями 70550 руб
Стоимость проекта со средними изменениями* 83900 руб
Стоимость проекта со значительными изменениями** 87500 руб

План цокольного этажа


Помещение — 9,19 м2

План первого этажа


Прихожая — 5,28 м2
Холл — 9,88 м2
Кухн-гост — 38,36 м2
С/у — 10,55 м2
Бойлерная — 5,59 м2
Гостевая — 12,96 м2

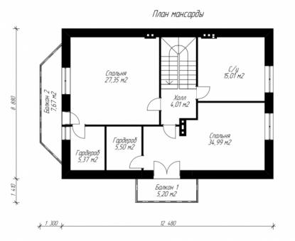
План мансардного этажа


Холл — 4,01 м2
Спальня — 27,35 м2
С/у — 15,01 м2
Спальня — 34,99 м2
Гардероб — 5,50 м2
Гардероб — 5,37 м2
Балкон — 7,67 м2
Балкон — 5,20 м2
Проект коттеджа с подвалом и мансардой Проект коттеджа с подвалом и мансардой Проект коттеджа с подвалом и мансардой Проект коттеджа с подвалом и мансардой

Модификации проектов

Внесение изменений и привязка к участку строительства

В любой из проектов от компании VIPplan - Алатырь по вашему желанию могут быть внесены изменения в материалы стен, материалы наружной отделки дома, а также будет произведена адаптация проекта под конкретный регион строительства (с учетом грунтов региона, геологических особенностей вашего участка и местных климатических условий) - БЕСПЛАТНО !!! (кроме проектов со скидкой и проектов наших партнеров).

Любой из проектов, размещенных на сайте alatyir.vipplan.ru мы можем выполнить из требуемых вам строительных материалов: ячеистый бетон (газобетон, пеноблок), керамоблок, кирпич, шлакоблок, бетонный блок, дерево (брус, клееный брус), каркасная технология (деревянный каркас, металлокаркас (ЛСТК)).

Фасад дома и его наружную отделку так же возможно выполнить с применением различных облицовочных материалов: структурной штукатурки, (с утеплителем и без), сайдингом (пластиковый или металлосайдинг), фиброплитами, кирпича.

 
6 Избранные
проекты

Доставка проектов по России: Москва (Московская область), Санкт-Петербург (Ленинградская область), Краснодар, Ростов-на-Дону, Ставрополь, Сочи, Волгоград, Новосибирск, Белгород, Брянск, Воронеж, Саратов, Хабаровск, Астрахань, Нальчик, Владикавказ, Екатеринбург, Тюмень, Самара, Нижний Новгород, Казань, Пермь, Уфа, Челябинск, Красноярск, Ханты-Мансийск, Иркутск, Курган, Оренбург, Омск, Томск, Барнаул, Новокузнецк, Кемерово, Абакан, Чита, Якутск, Южно-Сахалинск, Петропавловск-Камчатский и страны ближнего зарубежья: Белоруссия, Украина, Казахстан